Rustico in vendita

Palazzolo Sull'Oglio, Lungoglio Cesare Battisti
Informazioni in agenzia
40 locali 40 locali
3500 Mq 3500 Mq
40 bagni 40 bagni

Rustico in vendita

Palazzolo Sull'Oglio, Lungoglio Cesare Battisti

Descrizione annuncio

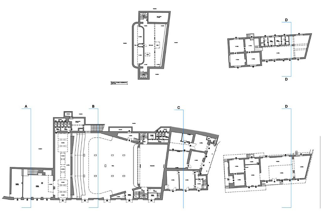
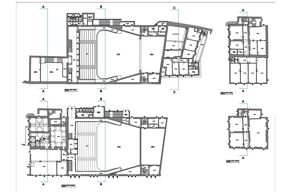
PALAZZOLO: Zona Mura, questo edificio rappresenta un’opportunità unica di recupero e valorizzazione in uno dei contesti più suggestivi di Palazzolo sull’Oglio, lungo le sponde del fiume Oglio, in fregio al viale Cesare Battisti. Si tratta di un complesso edilizio di grande rilevanza storica e architettonica, un tempo sede di un cinema storico e di una villa appartenuta a una delle famiglie più note della città, oggi in attesa di un progetto di rinascita già approvato e pronto per essere realizzato.

La proprietà si estende su una superficie complessiva di circa 4.000 mq, in un comparto che coniuga fascino storico e potenzialità contemporanee. L’attuale piano di intervento prevede la possibilità di procedere alla demolizione degli edifici esistenti, offrendo così la massima libertà progettuale e consentendo un ridisegno architettonico coerente con le esigenze moderne, pur nel rispetto della memoria e dell’identità del luogo.

Il nuovo progetto si articola su tre piani fuori terra, con un’altezza massima pari a 11 metri, misurati dal livello del marciapiede lungo il fronte su via Cesare Battisti. A ciò si aggiunge un piano interrato, concepito per ospitare un’ampia dotazione di posti auto privati, indispensabile per un complesso di tale portata e valore, garantendo funzionalità e comfort.

La superficie lorda di pavimento (SLP) complessiva ammonta a circa 3.300 mq, da destinare secondo le diverse vocazioni insediative consentite. Tale estensione offre un ventaglio ampio di possibilità d’uso, che possono spaziare dal residenziale di pregio al terziario, dall’ospitalità ricettiva alla cultura, fino a soluzioni miste che sappiano integrare funzioni abitative, commerciali e di servizio.

La posizione dell’immobile è particolarmente privilegiata: affacciato sul fiume Oglio, gode di un panorama suggestivo e di una cornice naturalistica che conferisce grande valore aggiunto all’intervento. Al contempo, la prossimità con il centro storico e con le principali vie di collegamento urbane e territoriali garantisce un’eccellente accessibilità.

L’insieme delle caratteristiche – ampiezza della superficie, flessibilità progettuale, centralità della posizione e prestigio storico-culturale – rende questo immobile una realtà di straordinario potenziale.

Per maggiori informazioni e documentazione, vi invitiamo a passare in agenzia.

Se stai valutando di cambiare casa, ma prima devi vendere la tua, contattaci per una valutazione gratuita e senza impegno! Ogni agenzia è autonoma e ha un proprio titolare. Le informazioni contenute in questa descrizione non costituiscono un impegno contrattuale.

Mostra tutto

Nelle vicinanze

Trasporto pubblico Trasporto pubblico
Palazzolo sull'Oglio
Palazzolo sull'Oglio
1,1 Km
Trasporto pubblico
210 m
Scuole Scuole
Scuola Statale Primaria MURA – GALIGNANI
220 m
Istituto Scolastico Ancelle della Carità
310 m
Enrico Fermi
430 m
Scuola Secondaria di Primo Grado Enrico Fermi
470 m
Scuola Secondaria di Primo Grado Martin Luther King
580 m
Farmacia Farmacia
Farmacia Cottinelli
110 m
Farmacia
140 m
Farmacia Valcamonica
760 m
Lloyds Farmacia
1,2 Km
farmacia
1,5 Km
Ospedali Ospedali
Mellino Mellini - Richiedei
310 m
Supermercati Supermercati
Dimeglio
250 m
Eurospin
620 m
Penny Market
800 m
Migross
1,0 Km
Italmark
1,3 Km
Negozi Negozi
Indian Market
20 m
Negozi
120 m
Viola Abbigliamento
160 m
Roby e Anna
160 m
Panificio Muratori
730 m
Bar Bar
alle scalette di Pio
40 m
Civico 52
100 m
La Piazzetta
210 m
Bar Marini
420 m
Oratorio San Sebastiano
510 m
Ristoranti Ristoranti
YUGEN Lounge Restaurant
340 m
Osteria della Villetta
1,0 Km
Ristoranti
1,0 Km
Trattoria "Tre Ponti"
1,1 Km
Quick Wok
1,1 Km
Mostra tutto

Caratteristiche

Rif.:
61111233
Piano:
Su più livelli di 3
Totale piani:
3
Box:
40
Terrazzi:
20
Camere da letto:
80
Mostra tutto
Prezzo Prezzo
Informazioni in agenzia
Spese annue Spese annue
€ 0
Proponi il tuo prezzoProponi il tuo prezzo

Classe Energetica

G
G
G
G
G
G
G
G
G
EP globale non rinnovabile:
360.10 kW h/m² anno
EP globale rinnovabile:
0.00 kW h/m² anno
EP invernale del fabbricato:
EP estiva del fabbricato:
Anno di costruzione:
1967
Riscaldamento:
Assente

Ti interessa visionare l'immobile?

Fissa un appuntamento  Fissa un appuntamento

Richiedi informazioni

Clicca su Leggi per aprire l'informativa
* Questi campi sono obbligatori
Affiliato
Palazzolo Casa Srl
P.zza Roma, 15 25036 Palazzolo Sull'Oglio (BS)

Il nostro staff


  • Edoardo Bertelli
    Affiliato

  • Maria Vittoria Fontana
    Collaboratrice

  • Alice Gandossi
    Collaboratrice

  • Elena Agazzi
    Coordinatrice

  • Giada Strabla
    Coordinatrice
P.zza Roma, 15 25036 Palazzolo Sull'Oglio (BS)
Zona: Palazzolo-Pontoglio
Mostra su mappa
Affiliato
Palazzolo Casa Srl
P.zza Roma, 15 25036 Palazzolo Sull'Oglio (BS)

2026 Tecnocasa Franchising S.p.A. - P. IVA 08365160152 - Via Monte Bianco 60/A 20089 Rozzano (MI). Ogni agenzia ha un proprio titolare ed è autonoma. Privacy policy | Policy utilizzo | Cookie policy